KAPCSOLAT
IDŐPONTOT KÉREK
VISSZAHÍVÁST KÉREK
AJÁNLOM EGY ISMERŐSÖMNEK
MEGOSZTÁS
KAPCSOLATFELVÉTEL
Az üzenetet sikeresen elküldtük!
Hiba történt!
INGATLAN ADATAI
Ingatlan jellege
panellakás
Belső terület
49 m²
Építési állapot
használt
Építési mód
- nem meghatározott -
Szobák száma
2 szoba
Emelet
szuterén.
Épület szintje
10.
Ingatlan állapot
kívül: jó
belül: jó
Fűtés
távfűtés egyedi méréssel
Komfort
összkomfort
Kilátás
kertre
HTML
PDF
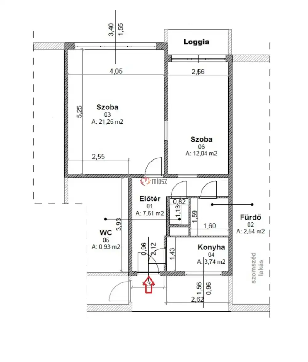
Eladó panellakás
Belső azonosító:
388060
Ingatlan azonosító:
35070_gimp
Budapest, XIV. kerület, Füredi utcai ltp.
Irányár
69 M Ft
Szobák
2 szoba
Emelet
szuterén
Terület
49 m²
INGATLAN LEÍRÁSA
JÓ ÁLLAPOTÚ, 2 SZOBÁS, LOGGIÁS LAKÁS, SZIGETELT PANELNHÁZBAN, AZ ÖRS VEZÉR TÉRE KÖZELÉBEN !
XIV. Kerületben, a közkedvelt Füredi lakótelepen, kiváló közlekedés és ellátottság mellett, 5 percre az Örs vezér tértől, CSENDES, gépjárműforgalomtól mentes utcában, 2011-ben, panelprogram keretein belül teljes körűen felújított, szigetelt, liftes, Dán típusú panel épületben, 4. emeleti, 49 nm-es, 2 szobás, ablakos konyhás, napos világos D-NY-i fekvésű, alacsony fenntartású, EGYEDI HŐMENNYISÉG MÉRŐS, jó állapotú, parkra néző, tehermentes, rugalmasan birtokba vehető, klimatizált lakás, beépített, gépesített konyhával, kulturált lakóközösségű házban eladó.
A parkolás közvetlenül a ház előtt ingyenesen megoldott.
A környék biztonságos, infrastruktúrája és közlekedése kitűnően ellátott!!
Karnyújtásnyira: élelmiszer boltok (SPAR), gyógyszertár, egészségügyi intézmények, bölcsőde, óvoda, általános és középiskola, valamint felsőoktatási intézmények találhatók.
Az M2-es metró, buszvégállomás, valamint az Árkád, Ikea, és Sugár bevásárlóközpontok gyalogosan 5 percre.
Kiváló választás, első lakást vásárlóknak, egyedülállóknak, fiatal pároknak, befektetőknek.
Ezt a lakást érdemes megnézni!!
További részletekért várom megtisztelő hívását.
(hétvégén is)
EA
XIV. Kerületben, a közkedvelt Füredi lakótelepen, kiváló közlekedés és ellátottság mellett, 5 percre az Örs vezér tértől, CSENDES, gépjárműforgalomtól mentes utcában, 2011-ben, panelprogram keretein belül teljes körűen felújított, szigetelt, liftes, Dán típusú panel épületben, 4. emeleti, 49 nm-es, 2 szobás, ablakos konyhás, napos világos D-NY-i fekvésű, alacsony fenntartású, EGYEDI HŐMENNYISÉG MÉRŐS, jó állapotú, parkra néző, tehermentes, rugalmasan birtokba vehető, klimatizált lakás, beépített, gépesített konyhával, kulturált lakóközösségű házban eladó.
A parkolás közvetlenül a ház előtt ingyenesen megoldott.
A környék biztonságos, infrastruktúrája és közlekedése kitűnően ellátott!!
Karnyújtásnyira: élelmiszer boltok (SPAR), gyógyszertár, egészségügyi intézmények, bölcsőde, óvoda, általános és középiskola, valamint felsőoktatási intézmények találhatók.
Az M2-es metró, buszvégállomás, valamint az Árkád, Ikea, és Sugár bevásárlóközpontok gyalogosan 5 percre.
Kiváló választás, első lakást vásárlóknak, egyedülállóknak, fiatal pároknak, befektetőknek.
Ezt a lakást érdemes megnézni!!
További részletekért várom megtisztelő hívását.
(hétvégén is)
EA
INGATLAN ADATAI
Ingatlan jellege
panellakás
Belső terület
49 m²
Építési állapot
használt
Építési mód
- nem meghatározott -
Szobák száma
2 szoba
Emelet
szuterén.
Épület szintje
10.
Ingatlan állapot
kívül: jó
belül: jó
belül: jó
Fűtés
távfűtés egyedi méréssel
Komfort
összkomfort
Kilátás
kertre
Energetika
TÉRKÉP
Budapest, XIV. kerület, Füredi utcai ltp.
Hitelkalkulátor
KAPCSOLAT

Egri Attila
+36 30 442 1415
a.egri@gdn-ingatlan.hu
KAPCSOLAT
IDŐPONTOT KÉREK
VISSZAHÍVÁST KÉREK
AJÁNLOM EGY ISMERŐSÖMNEK
MEGOSZTÁS
KAPCSOLATFELVÉTEL
Az üzenetet sikeresen elküldtük!
Hiba történt!
INGATLAN ADATAI
Ingatlan jellege
panellakás
Belső terület
49 m²
Építési állapot
használt
Építési mód
- nem meghatározott -
Szobák száma
2 szoba
Emelet
szuterén.
Épület szintje
10.
Lift
nincs megadva
Ingatlan állapot
kívül: jó
belül: jó
Fűtés
távfűtés egyedi méréssel
Komfort
összkomfort
Kilátás
kertre
Energetika
HTML
PDF