KAPCSOLAT
IDŐPONTOT KÉREK
VISSZAHÍVÁST KÉREK
AJÁNLOM EGY ISMERŐSÖMNEK
MEGOSZTÁS
KAPCSOLATFELVÉTEL
Az üzenetet sikeresen elküldtük!
Hiba történt!
INGATLAN ADATAI
Ingatlan jellege
téglalakás
Belső terület
75 m²
Építési állapot
újszerű
Építési mód
- nem meghatározott -
Szobák száma
3 szoba
Emelet
6.
Épület szintje
6.
Ingatlan állapot
kívül: jó
belül: jó
Fűtés
központi egyedi méréssel
Komfort
duplakomfort
Kilátás
utcára
HTML
PDF
Eladó újszerű téglalakás
Belső azonosító:
390110
Ingatlan azonosító:
35396_gimp
Budapest, XIV. kerület, Alsórákos
Irányár
165 M Ft
Szobák
3 szoba
Emelet
6
Terület
75 m²
INGATLAN LEÍRÁSA
Csak nálunk!
Exkluzív PENTHOUSE a 6. emeleten – teljes intimitás, körpanorámás terasz, prémium életérzés Zuglóban!
Budapest XIV. kerületének egyik legkedveltebb lakóövezetében, a Cordia Thermal 1 lakópark legfelső szintjén eladó ez a páratlan adottságú, luxus érzetet sugárzó penthouse lakás, melyhez 103 m²-es, lenyűgöző körpanorámás terasz tartozik.
A 6. emeleten mindössze két lakás található, így a lehető legmagasabb szintű intimitás, csend és nyugalom biztosított – távol a város zajától, de mégis mindenhez közel. Ez az a szint, ahol valóban megélhető a penthouse-ok egyedi, privát világot kínáló életérzése.
Főbb adatok:
Építés éve: 2011
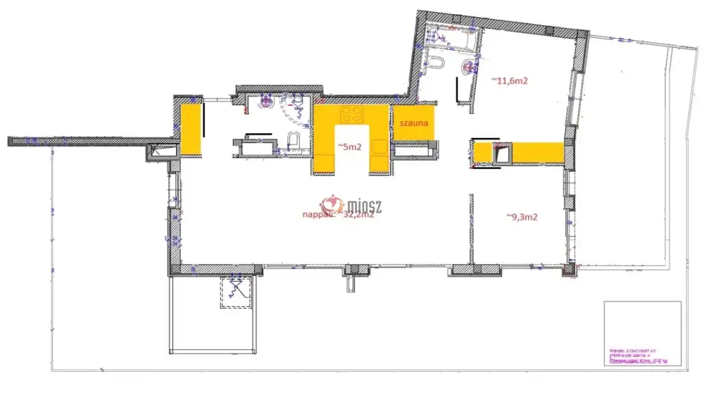
Lakótér: 75 m²
Terasz: 103 m² körpanorámával
Közös költség: 32.000 Ft/hó benne van a fűtés és a hideg-meleg víz, szemétszállítás, takarítás, kertész,évente 4 ünnepi díszítés a társasházban,
Energetika: C besorolás
Fűtés: házközponti, egyedi mérés
Állapot: szép állapotban, azonnal költözhető, tehermentes
A lakás – letisztult egyszerű 2011-es design és modern kényelem.
A tágas amerikai konyhás nappaliból két külön nyíló hálószoba és két kényelmes fürdőszoba érhető el.
A magasfényű, modern konyhabútor és a beépített gépek az ár részét képezik, csakúgy, mint a lakásban található infraszauna.
A lakás műszakilag kifogástalan: korszerű 3×25 A elektromos hálózat,riasztórendszer és 4 darab Midea hűtő-fűtő klíma gondoskodik a maximális kényelemről – télen és nyáron egyaránt.
Csak minimális frissítést igényel (tisztasági festés, modern világítástechnika, esetleg fürdőszoba bútor), így rövid idő alatt mai design-ra emelhető.
A PENTHOUSE esszenciája – 103 m² privát tetőterasz!
A lakást körül öleli az óriási terasz és így 3 égtájról napozza be az ingatlant ami igazi különlegesség.
Terasz beépítéssel akár télikert,kültéri zárható edzőterem vagy saját wellness részleg is kialakítható jakuzzival, finn-szaunával.
Jelenleg hideg–meleg vizes zuhany áll rendelkezésre a teraszon.
A zöldtető elemek és az aktív tetőszerkezet lehetővé teszik még nagyobb növények, akár saját tetőkert telepítését is. A képeken néhány éves tetőkert látható jelenleg várja új tervezőjét a csodás kert.
A hatalmas üveg tolóajtók jó időben szinte egybeolvasztják a nappali tereit a terasszal, így a lakás térérzete messze túlmutat a megszokott alapterületeken.
Műszaki minőségnek elég a Cordia méltán híres vállalat hírneve,de néhány alap információ a teljesség igénye nélkül.
-Beton + 30-as porotherm falazat
-15 cm dryvit szigetelés
-Prémium minőségű panoráma nyílászárók.Kiváló hő- és hangszigetelés
-Elektromos redőnyök
-Zöldtető automata öntöző rendszer
-Biztonságtechnika és riasztó
-Kamerás zárt lépcsőház és parkoló
A lakóközösség kifejezetten rendezett, kulturált és igényes, ami tovább növeli az ingatlan értékét és élhetőségét.
Elhelyezkedés – zöld környezet, aktív életmód, minden karnyújtásra
A lakópark közvetlenül a Rákos-patak partján, a Paskál Fürdővel szemben helyezkedik el.
A környék nyugodt, biztonságos és folyamatosan fejlődik.
A közelben:
-futópálya, kerékpárút, sportpálya,élelmiszerbolt
-újonnan megnyitott bevásárlóközpont éttermekkel, üzletekkel, szolgáltatásokkal
Tömegközlekedés: 1 perc sétára.
Parkolás és tárolók
-Díjmentes parkolási övezet
-Opcionálisan vásárolható: 2 teremgarázs-beálló valamint 2 db tároló
Jöjjön el nézze meg és tegyen ajánlatot
I.V.
Exkluzív PENTHOUSE a 6. emeleten – teljes intimitás, körpanorámás terasz, prémium életérzés Zuglóban!
Budapest XIV. kerületének egyik legkedveltebb lakóövezetében, a Cordia Thermal 1 lakópark legfelső szintjén eladó ez a páratlan adottságú, luxus érzetet sugárzó penthouse lakás, melyhez 103 m²-es, lenyűgöző körpanorámás terasz tartozik.
A 6. emeleten mindössze két lakás található, így a lehető legmagasabb szintű intimitás, csend és nyugalom biztosított – távol a város zajától, de mégis mindenhez közel. Ez az a szint, ahol valóban megélhető a penthouse-ok egyedi, privát világot kínáló életérzése.
Főbb adatok:
Építés éve: 2011
Lakótér: 75 m²
Terasz: 103 m² körpanorámával
Közös költség: 32.000 Ft/hó benne van a fűtés és a hideg-meleg víz, szemétszállítás, takarítás, kertész,évente 4 ünnepi díszítés a társasházban,
Energetika: C besorolás
Fűtés: házközponti, egyedi mérés
Állapot: szép állapotban, azonnal költözhető, tehermentes
A lakás – letisztult egyszerű 2011-es design és modern kényelem.
A tágas amerikai konyhás nappaliból két külön nyíló hálószoba és két kényelmes fürdőszoba érhető el.
A magasfényű, modern konyhabútor és a beépített gépek az ár részét képezik, csakúgy, mint a lakásban található infraszauna.
A lakás műszakilag kifogástalan: korszerű 3×25 A elektromos hálózat,riasztórendszer és 4 darab Midea hűtő-fűtő klíma gondoskodik a maximális kényelemről – télen és nyáron egyaránt.
Csak minimális frissítést igényel (tisztasági festés, modern világítástechnika, esetleg fürdőszoba bútor), így rövid idő alatt mai design-ra emelhető.
A PENTHOUSE esszenciája – 103 m² privát tetőterasz!
A lakást körül öleli az óriási terasz és így 3 égtájról napozza be az ingatlant ami igazi különlegesség.
Terasz beépítéssel akár télikert,kültéri zárható edzőterem vagy saját wellness részleg is kialakítható jakuzzival, finn-szaunával.
Jelenleg hideg–meleg vizes zuhany áll rendelkezésre a teraszon.
A zöldtető elemek és az aktív tetőszerkezet lehetővé teszik még nagyobb növények, akár saját tetőkert telepítését is. A képeken néhány éves tetőkert látható jelenleg várja új tervezőjét a csodás kert.
A hatalmas üveg tolóajtók jó időben szinte egybeolvasztják a nappali tereit a terasszal, így a lakás térérzete messze túlmutat a megszokott alapterületeken.
Műszaki minőségnek elég a Cordia méltán híres vállalat hírneve,de néhány alap információ a teljesség igénye nélkül.
-Beton + 30-as porotherm falazat
-15 cm dryvit szigetelés
-Prémium minőségű panoráma nyílászárók.Kiváló hő- és hangszigetelés
-Elektromos redőnyök
-Zöldtető automata öntöző rendszer
-Biztonságtechnika és riasztó
-Kamerás zárt lépcsőház és parkoló
A lakóközösség kifejezetten rendezett, kulturált és igényes, ami tovább növeli az ingatlan értékét és élhetőségét.
Elhelyezkedés – zöld környezet, aktív életmód, minden karnyújtásra
A lakópark közvetlenül a Rákos-patak partján, a Paskál Fürdővel szemben helyezkedik el.
A környék nyugodt, biztonságos és folyamatosan fejlődik.
A közelben:
-futópálya, kerékpárút, sportpálya,élelmiszerbolt
-újonnan megnyitott bevásárlóközpont éttermekkel, üzletekkel, szolgáltatásokkal
Tömegközlekedés: 1 perc sétára.
Parkolás és tárolók
-Díjmentes parkolási övezet
-Opcionálisan vásárolható: 2 teremgarázs-beálló valamint 2 db tároló
Jöjjön el nézze meg és tegyen ajánlatot
I.V.
INGATLAN ADATAI
Ingatlan jellege
téglalakás
Belső terület
75 m²
Építési állapot
újszerű
Építési mód
- nem meghatározott -
Szobák száma
3 szoba
Emelet
6.
Épület szintje
6.
Ingatlan állapot
kívül: jó
belül: jó
belül: jó
Fűtés
központi egyedi méréssel
Komfort
duplakomfort
Kilátás
utcára
Energetika
TÉRKÉP
Budapest, XIV. kerület, Alsórákos
Hitelkalkulátor
KAPCSOLAT
Iván Veronika
+36 70 365 6991
i.veronika@gdn-ingatlan.hu
KAPCSOLAT
IDŐPONTOT KÉREK
VISSZAHÍVÁST KÉREK
AJÁNLOM EGY ISMERŐSÖMNEK
MEGOSZTÁS
KAPCSOLATFELVÉTEL
Az üzenetet sikeresen elküldtük!
Hiba történt!
INGATLAN ADATAI
Ingatlan jellege
téglalakás
Belső terület
75 m²
Építési állapot
újszerű
Építési mód
- nem meghatározott -
Szobák száma
3 szoba
Emelet
6.
Épület szintje
6.
Lift
nincs megadva
Ingatlan állapot
kívül: jó
belül: jó
Fűtés
központi egyedi méréssel
Komfort
duplakomfort
Kilátás
utcára
Energetika
HTML
PDF